ARCHITEKTONICKÁ STUDIE
NOVOSTAVBA VEDLEJŠÍHO OBJEKTU U RODINNÉHO DOMU
2024
„Venkovský charakter stavby& místo pro práci, parkování a přespání"
Zadání
U rodinného domu vznikly nové potřeby parkování obslužných vozidel. Dále investorovi chyběl krytý pracovní prostor a možnost přespání pro příležitostní návštěvy.
Zároveň však investor cítil potřebu a nutnost nehyzdit okolí svého rodinného domu standardní krabicí, či garáží s mírnou vazníkovou střechou. Ale když už jsou tyto prostory potřeba, pojat je esteticky, co nejvřeleji.
Lokalita
Uprostřed lesů na Pěnčínsku.
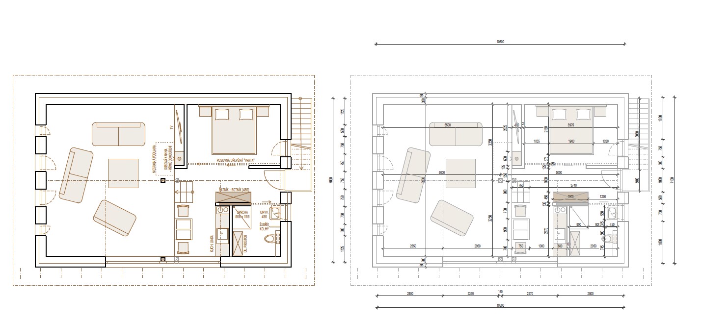
HMOTOVÉ & DISPOZIČNÍ UVAŽOVÁNÍ
Z důvodu možnosti vytvoření apartmánu pro příležitostné přespání, který má výrazně odlišné potřeby na tepelně izolační a akumulační vlastnosti, bylo rozhodnuto o horizontálním dělení stavby. V horním patře nalezneme zmíněný apartmán s vyvýšenou částí pro spaní a odpočinek. Zvýšení stropní konstrukce je navrženo zejména za vidinou parkování vyšších dodávek ve spodní části.
Exteriér stavby je navržen v tradičním historickém duchu jizersko-horské zástavby.































